If you had read the OP and looked at the diagrams provided you would note that he is loading the reel "shotgun" on a double drop trailer and I can say with certainty that he has a nine hundred ninty nine in a thousand chance or better that the trailer is built of high strength steel with very little if any aluminum and is set up to use 1/2 inch grade 70 chain.
Securing Steel reel
Discussion in 'Flatbed Trucking Forum' started by Blindsin36, Jul 23, 2019.
Page 4 of 5
-
x1Heavy, Lepton1, Ruthless and 1 other person Thank this.
-
Trucking Jobs in 30 seconds
Every month 400 people find a job with the help of TruckersReport.
-
Exactly. I was trying either types. to see which is more cost efficient and less time consuming. although as some already suggested 6 chains even when crunching in the numbers I still fail with deceleration. I won't be allowed to pick up from this client without proving the reasoning behind my # of chains and location.jamespmack, x1Heavy, Lepton1 and 1 other person Thank this.
-
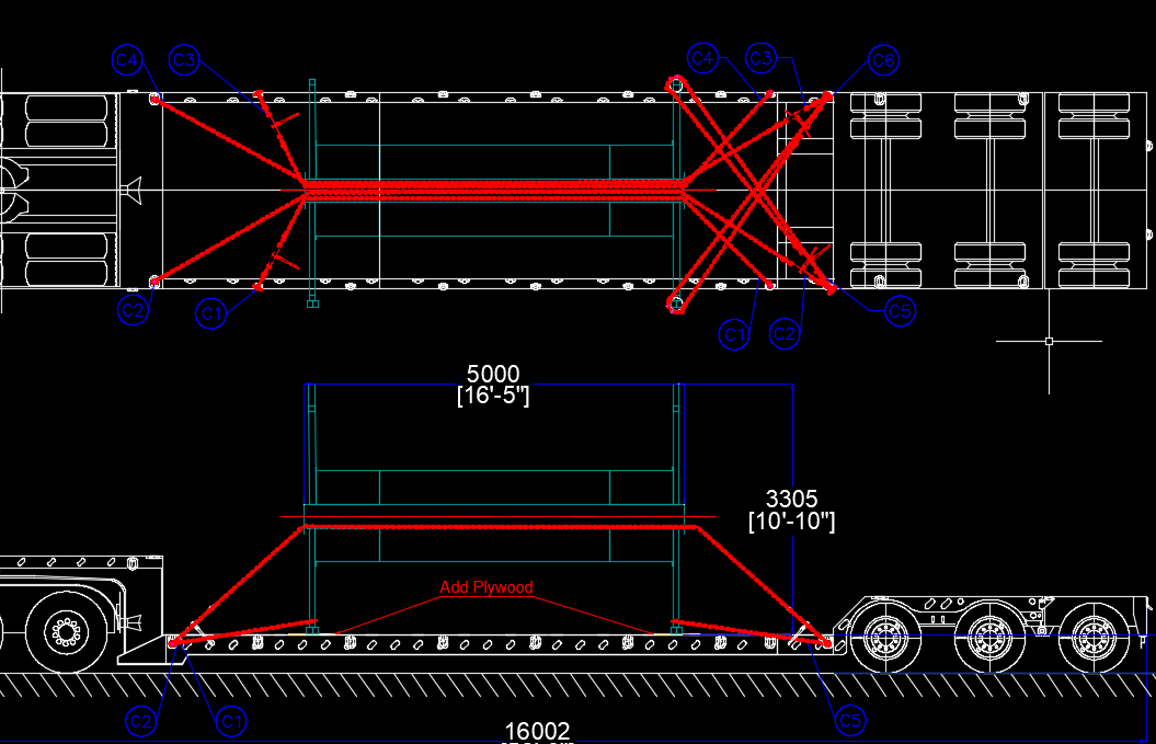
looking at your tie-down plan if you move C9 and C10 back to hold against the front of the reel and they are 1/2" gr70 then if you can run a single 1/2" chain from the trailer behind C3 over the mounting frame and back over the frame to the trailer behind C4 as a "tripping stopper" then you have 33,900# of deceleration (32000 required) and all the other requirements are also.
you could add 2 3/8 gr 70 in the C1 and C2 positions as extras and you bump the decel to more than the load weight.Last edited: Jul 24, 2019
x1Heavy, Blindsin36, Lepton1 and 2 others Thank this. -
Should stay on there if ditched and rolled then. It was always well chained down when I see a truck on its side in a 20 foot deep ditch and the loads still firmly on the trailer. I've also seen stuff so poorly chained down that the truck is only on a 30 degree angle with one side in a 3 foot deep ditch, and the load has shifted, sometimes shifting so far one side has fallen off the trailer.
Did a recovery this winter, the grader on the lowbed had 3 of its 6 tires right off of the trailer, and it was a mild ditching by the truck driver, not a full on hard crash. This genius had 4 chains on it, not even grade 70, just regular hardware store chain. First thing I did was actually unload the grader by driving it off. Plowed the foot of snow with it, so it was easier to drag the truck back up onto the hwy. Once i had the truck out, I told the idiot where to go buy real chains and binders, sent him on his way empty. When he returned i loaded the grader up, and showed him how to chain it down correctly. He was 22, never trained, no proper equipment to fasten a load, and when I asked to see his over height permit to ensure that it was correct, he stared blankly, and said "over height permit"?.
So i had him move to a safe area off the hwy about 3000 feet away, and park and together we called and got him a permit. Why send a young man full of ignorance out alone to haul a grader, no equipment or training. He was already in the ditch an hour into his drive, and still had 12 more hours to reach his destination. His employer was 100% at fault as far as I am concerned.
I spend an incredible amount of hours teaching my junior drivers how to low bed stuff, before I ever let them go at it alone. 80% of my time in a truck the last few months is spent in the passenger seat teaching any one of three young ladies how to do it right. When the road is too nasty, i have them stop and I drive a ways until its better again, then we switch back. I rarely do the actual loading of the equipment at this point when them, they have been learning how to run just about everything made. And i do zero of the tire chaining up, or the chaining of the load down. If they ask me for a suggestion I will give it, and when they say they are done, I look it over to ensure that it is sufficiently chained down. But they all have done many runs with me hauling equipment at this point, and they have many more to do before they go alone, unless it is a small, basic load, on decent roads. I sent two out this morning alone, but these are such easy loads, on mostly paved roads, and some good gravel, so nothing to them. The lady I am riding with right now, this is not a picnic haul. If she is not a bit scared by the time we unload, she has ice in her veins. And the load back out down the mountain with the broken button top we are taking for repairs, well coming down should be a nice mix of her holding her breath and sweating. Or for my nerves, because its hard to sit in the passengers seat and not open the door and jump sometimes, I may drive the truck down to where we drop the booster off, and she can drive from there. This road is so bad they usually drive the equipment up and down the last 4.5 kms of the road for me, but this button top has a seized engine, so it isn't possible. They will drag it onto the bed with a couple skidders pulling and the new button top lifting the boom up and pushing. I hate loading broken machines, its always a little chaos. At least they tell me they have already removed the actual head already, which is nice. When we get it to the shop, they have equipment to drag it off at least. It won't be delivered until tomorrow, today it goes as far as my yard, and the journey continues tomorrow to kamloops. -
FYI this worked with (x6) 1/2" GR70 chains. Thank you all for the suggestions and help.
Attached Files:
Last edited: Jul 24, 2019
jamespmack, not4hire, Lepton1 and 2 others Thank this. -
-
I have had episodes when at 21, 22, 23 etc employer says go there get that, deliver there get going yer late. No time to eat and chat. Go go go.
When I arrived at Go there and was either told what I will have to do or not do or some wild hair up the shipper... I am clueless. No trainer no nothing.
The resulting loads are everything bad about trucking. Thankfully I did not have too many of those. -
FYI this is the better version with the same setup would be clearer to all.jamespmack Thanks this. -
Guessing the center of the spool is not a solid tube. Will be interesting getting the chains through there if it is. Not saying it can't be done. But I have a tough time getting through 8' with my current setup.
-
I usually tie a rope to a small wood rod and tie the other end into the chain and pull the rod(prepared to accommodate the size before hand) through. I'm picky on the jobs i take I try to be prepared as much as I can.
And its a Hollow tube 5 1/2" big enough to fit enough chains if necessary.jamespmack Thanks this. -
Do ya have a 12' wood rod?
Trucking Jobs in 30 seconds
Every month 400 people find a job with the help of TruckersReport.
Page 4 of 5
