Truck Parking Layout

Discussion in 'Experienced Truckers' Advice' started by daveolson36, May 5, 2022.

  1. daveolson36

    daveolson36 Light Load Member

    77
    87
    May 8, 2020
    0
    Hello All!
    It's been awhile since I last posted but now that I have the layout nailed down, I wanted to get everyone's feedback regarding the restroom / shower / lounge layout that we will be constructing along side the truck lot. The lounge / restrooms are subject to change but this is a good first pass.

    Few things to note:

    1. We will have six total restrooms. Five of them will have a shower with a large fan in the corner of each restroom.
    2. Showers will be free and towels will be provided and each shower will have shampoo, soap dispensers etc.
    3. Lounge will have one or two TV's and free WiFi will be provided
    4. Cleanliness is a TOP priority for us so they will be cleaned frequently and often after each us
    5. Qty of the vending machines, coffee etc. is TBD. That's just to fill / allocate space

    Thanks!!

    upload_2022-8-11_13-38-20.png

    upload_2022-8-11_13-42-52.png
    upload_2022-8-11_13-52-50.png
     
    CAXPT, Bean Jr., gentleroger and 2 others Thank this.
  2. Truckers Report Jobs

    Trucking Jobs in 30 seconds

    Every month 400 people find a job with the help of TruckersReport.

  3. buzzarddriver

    buzzarddriver Road Train Member

    3,735
    11,102
    Feb 1, 2011
    Dallas, TX
    0
    Showers must be sanitized after each use.
    Move the two restrooms to the front with showers to the rear. Which will be three regular showers and one ADA shower.
    There needs to be a 24 hour a day attendant, or your facility will get trashed.
    Good luck.
     
  4. skallagrime

    skallagrime Road Train Member

    3,853
    9,926
    Apr 10, 2012
    Indiana
    0
    Apparently my post didnt take earlier

    Suggest making showers 5$

    Most things, paid for items are better taken care of, free is the wrong price, at 5$ even a company driver shouldnt have a problem

    Make as policy that your attendants can Offer a free shower if the driver needs it, but that shouldnt be the norm.


    Also, picnic/smoking area is on west side, that will be brutal in the sun 3pm till sunset, consider a sunshade or tossing a table/small overhang on the other end
     
  5. daveolson36

    daveolson36 Light Load Member

    77
    87
    May 8, 2020
    0
    Great points!!
     
    God prefers Diesels Thanks this.
  6. daveolson36

    daveolson36 Light Load Member

    77
    87
    May 8, 2020
    0
    Good point on charging $5 considering the price of a shower, in some areas, is pushing $18 - $20. I will have them either relocate the outdoor table or provide a sun shade canopy of sorts.

    Thanks for your comments!!
     
  7. daveolson36

    daveolson36 Light Load Member

    77
    87
    May 8, 2020
    0
    See attached changes and let me know what you think! Thanks!
    upload_2022-8-16_20-10-9.png
     
    CAXPT Thanks this.
  8. daveolson36

    daveolson36 Light Load Member

    77
    87
    May 8, 2020
    0
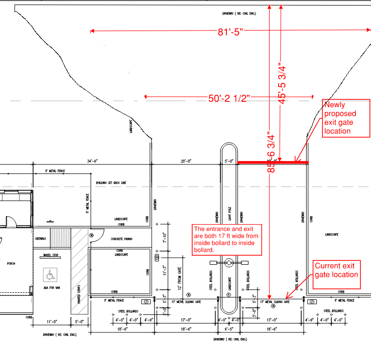
    Hello Everyone! I'm back and happy to announce we break ground March 1st on this project and hav3 three more opening this year totaling 68 acres in 4 different markets. I had one question around the entrance and exit that I'd like run by everyone on here. Currently the entrance gate and exit gate are side by side. My plan would be to offset the exit gate in order to get a majority of the tractor and trailer out of the lot while still leaving enough turning radius for the driver exiting.

    Would you prefer the current exit gate location or the newly proposed exit gate location? Thanks!!

    Screenshot 2023-02-14 145712.png
     
    CAXPT Thanks this.
  9. skallagrime

    skallagrime Road Train Member

    3,853
    9,926
    Apr 10, 2012
    Indiana
    0
    New gate, if you do the old, id lay money on people not neccessarily paying attention and trying to pull in the exit. Theyll still do it, but wont cause as much issues if theyre stopped short.

    Good signage is a big contributiong factor btw
     
  10. daveolson36

    daveolson36 Light Load Member

    77
    87
    May 8, 2020
    0
    That's a great point on some trying to enter in the exit!! We plan to have arial signs and arrow / numbers painted on the ground for sure.
     
  11. CAXPT

    CAXPT Road Train Member

    3,317
    15,484
    Feb 10, 2008
    Michigan
    0
    My one suggestion on your exit, is that you may need to straighten out that stretch of curbing on there that will be going to the right. You have, right now in that Katy location, what is essentially a 3 lane US 90. That driver can turn either left or right, but if they are going right, and another vehicle is coming in, they may have to bear right so the incoming vehicle can make their swing on the inside, and they will need to be able to make theirs and that curbing will get hit a lot. Actually removing the arc there would be good for both sides, incase the driver isn't able to make the wide swing in or out. Basically you'll be going straight from that gated area straight to the width that you can get. Unless they're widening that road, the trucks are going to need as much 'options' as possible to compensate for bad drivers and/or 4 wheeler shenanigans. The trailer follow through won't jump into your grass area as much hopefully and don't forget that the open decks, RGN's etc, if they have wide loads will need more of that real estate than vans with closed tandems. Here's what I'm trying to describe, if that right-of-way you have to work with, will allow it.
    modifieddriveentry.png
     
    Last edited: Feb 15, 2023
    daveolson36 Thanks this.
  • Truckers Report Jobs

    Trucking Jobs in 30 seconds

    Every month 400 people find a job with the help of TruckersReport.